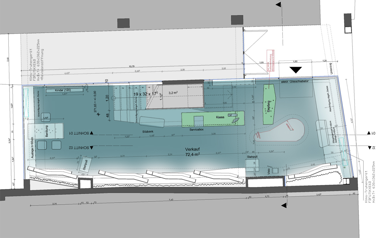
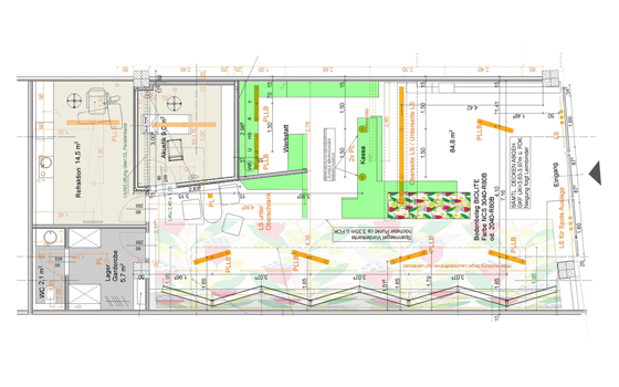
UNITED OPTICS SHOPDESIGN

FORSTER Filiale Melk, Löwenpark United Optics

FORSTER Filiale Ybbs United Optics

Filiale St.Pölten + FORSTER United Optics + +